Godt nytt år! Vi har varetelling denne uken og av den grunn vil ingen ordre bli pakket og sendt.

Første mulighet for levering av nye ordre vil bli fra 12. januar.

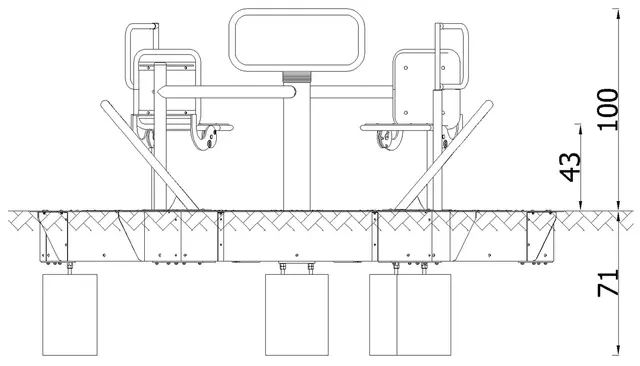
Integration Carousel Ø209 x H100 cm Integration Carousel Ø209 x H100 cm Integration Carousel Ø209 x H100 cm Integration Carousel Ø209 x H100 cm

Integration Carousel

Ø209 x H100 cm

398 500,-
Varenr: 313231
Alle skal med! Her er påkjøringsmulighet og plass for rullestol. Materialene er robuste og tåler heftig bruk over lang tid i krevende klima.
Antall: ():
-+
Bestillingsvare 28 dager
BeskrivelseTeknisk infoNedlastinger
Beskrivelse

Materiale: Galvanisert og pulverlakkert stål.

Mål: Ø209 x H100 cm

Sikkerhetsareal: Ø609 cm

Fundamentering: Betong

Teknisk info

Produktinformasjon

Levering Standard levering
Materiale Pulverlakkert stål


Nedlastinger
142894