Godt nytt år! Vi har varetelling denne uken og av den grunn vil ingen ordre bli pakket og sendt.

Første mulighet for levering av nye ordre vil bli fra 12. januar.

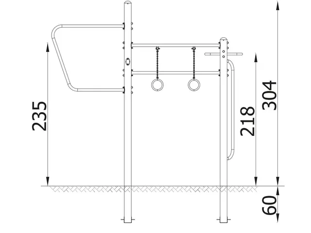
Street workout 140 lime L168 x B313 x H304 cm Street workout 140 lime L168 x B313 x H304 cm Street workout 140 lime L168 x B313 x H304 cm Street workout 140 lime L168 x B313 x H304 cm Street workout 140 lime L168 x B313 x H304 cm

Street workout 140 lime

L168 x B313 x H304 cm

42 890,-
Varenr: 3115140A

Apparat for styrketrening og kalisteniske øvelser, som er basert på trening med bruk av egen kroppsvekt. Laget av materialer av høyeste kvalitet som er motstandsdyktige mot værforhold og tåler bruk i lang tid.

Antall: ():
-+
Bestillingsvare 28 dager
BeskrivelseTeknisk infoNedlastinger
Beskrivelse

Materiale: Galvanisert og pulverlakkert stål

Farge ramme: Grå RAL 7016

Farge stenger: Oransje RAL 2004, Gul RAL 1017 eller Lime Pantone 583c

Mål: L168 x B313 x H304 cm

Fallhøyde: 235 cm

Sikkerhetsareal: L715 x B597 cm

Alder: Fra 14 år

Kapasitet: 5 personer

Universell utforming: Tilgjengelig ved nedsatt syn og hørsel, og ved nedsatt bevegelighet, avhengig av funksjonsnivå

Forankring:

Sertifisering: EN 16630:2015-06

 

Teknisk info

Produktinformasjon

Levering Standard levering
Materiale Metall


Nedlastinger
260512